貸家 長岡三丁目24-21
閑静な住宅街に立地★バイクの駐輪も可能です!
登録日/2024年03月23日 更新日/2025年12月04日
お問い合わせ番号/ 19630c
貸家
賃料7.0万円
京都府長岡京市長岡3丁目24-21- 敷金/礼金
- 1ヶ月 / 1ヶ月
- 管理費/共益費
- 0円 / 0円
- 築年月
- 1965年11月 / 築60年
- 最寄駅
-
- 阪急電鉄京都線
- 長岡天神駅徒歩12分
- 東海道本線
- 長岡京駅徒歩24分
- 阪急電鉄京都線
- 西向日駅徒歩28分
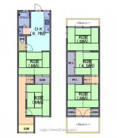
- 間取り
-
- 間取り
- 5DK
- 専有面積
- 82.64m2
- 階数/住階
- 2階 / -
オススメ即入可
この物件の主な特徴
利用可能沿線 2沿線利用可 利用可能駅 2駅利用可 閑静な住宅地 バイク置場 駐輪場 バルコニー バルコニー有 和室 リビングの隣和室 続き和室 ガス 都市ガス コンロ口数 二口 給湯器 洗面台 独立洗面台 バストイレ 別 バス 専用 追い焚き シャワー 浴室乾燥機 浴室に窓 トイレ 専用 温水洗浄便座 暖房便座 フローリング 室内洗濯機置場 上水道 公営 汚水 下水道 収納 押入 二人入居可否 可 子供入居 可 礼金 1ヶ月 敷金 1ヶ月 ※設備名をクリックで対象の設備の物件一覧を絞り込み- 保証金
- 更新料
- 1ヶ月
- バルコニー面積
- -
- ペット備考
- -
- リフォーム
- - -
- 学校区
-
- 小学校区
- 長岡第三小学校 距離:1262m
- 中学校区
- 長岡第二中学校 距離:889m
- 部屋向き
- 東
- 借地権種類
- バイク置き場
-
- -
- 料金
- -
- 空き戸数/総戸数
- -/-
- 取引態様
- 一般
- 備考
- 保証会社加入要
- 敷引
- 保険料
- 21,500円
- 室内清掃費
- 鍵交換費
- その他費用
- ライフサポート:880円
- ベランダ面積
- -
- テラス面積
- -
- 部屋番号:棟番号
- 棟番号部屋番号非公開
- リノベーション
-
- -:-
- -
- 建物構造
- 木造
- 駐車場
-
- 無
- 駐車場料金
- -
- 駐車場空き台数
- -
- 近隣駐車場距離
- -
- 駐輪場
-
- -
- 料金
- -
- 現況
- 空き
- 引渡時期
-
- 即引渡し可
- ---
- 借家契約
-
- 普通借家権
- 契約期間
- 2年
- 法令に基づくその他
制限事項 - -
公益社団法人京都宅地建物取引業協会会員
公益社団法人乙訓青年会議所特別会員OB
長岡京市商工会会員
NPO法人京都くらし方研究会正会員
長岡天満宮青年会会員 副会長
公益社団法人乙訓青年会議所特別会員OB
長岡京市商工会会員
NPO法人京都くらし方研究会正会員
長岡天満宮青年会会員 副会長












































